Enceintes Principale V1

Introduction:


Mes enceintes MACH2 vieillissent très mal. Les suspensions en mousse des boomers se déchirent et un tweeter vient de rendre l’âme. Impossible de trouver des pièces de rechange adaptées. Novice en la matière on me conseil l’achat d’un boomer de 38cm version pro. Résultat pas de grave.

En étudiant les raisons de l’incompatibilité de ce boomer avec la caisse je m’intéresse de plus près à la conception d’enceinte et me lance dans un nouveau projet, la fabrication d’une enceinte audio.


Cahier des charges :


Les systèmes Hifi m’ont toujours apporté une grande frustration lors des montées en puissance. Je me suis donc tourné vers ce qui se faisait chez les pros. 


Le cahier des charges est simple: 


     De bonnes basses profondes

     Du haut rendement (> 98dB)

     Du matériel pro

     De bonnes qualités audio

     Une excellente tenue en puissance

     Oublier les contraintes d’encombrement


Le dernier point est très certainement le plus important car dans ce type d’étude, la première barrière à franchir est de convaincre sa compagne et soi-même du «NO LIMIT» en termes d’encombrement.



“La vraie liberté consiste dans la faculté de choisir ses propres contraintes.” 

De Leslie Kaplan



Étude :


Avant de se lancer dans toute réalisation une bonne étude s’impose. Tous les critères doivent être exposés afin de définir les choix. Quels hauts parleurs, nombre de voix, type de charge, volume de l’enceinte, choix des matériaux et esthétique finale.

Le projet est finalement basé sur une enceinte 3 voix. L’ensemble est minutieusement modélisé en 3D afin de plus facilement se rendre compte du rendu final.

Focus sur les graves :


Sur les systèmes hifi grand public la première frustration lors de la montée en puissance provient souvent du haut-parleur de grave. Le focus est donc mis sur les basses.


Il y avait longtemps que je voulais essayer un vrai boomer. Souvent déçut par les 30cm et parfois 38cm je me suis dit "arrêtons de bricoler et passons aux choses sérieuses". 


A l’extrême nous avons les 63cm ou même un 80cm. Mais pour une première enceinte je devais rester tout de même raisonnable sur le budget. Donc le choix s’est recentré sur les 46cm.


Le gagnant est le MONACOR SPA-46/500PA

Les critères de choix sont les suivants:


     Le diamètre de 46cm avec 99dB de rendement pour une pression sonore maximale.

     Le facteur de force élevé (BL = 29,1)  ainsi qu’une masse mobile de 168g pour un rapport BL/Mms excellent

     La fréquence de résonance basse de 32Hz.

     Le volume équivalent (VAS) pas trop important de 285 litres

     La puissance élevée 500W RMS et 2000W en pointe. Le prix qui ne sortait pas de mon budget.

Simulations des basses:


La charge retenue pour les graves est de type Bass reflex d’un volume de 250L avec un accord à 40Hz.

D’après la simulation nous obtenons une fréquence de coupure basse de 37Hz à -3dB.

Il est très important de connaitre la puissance maximum utile. Initialement cette enceinte avait été conçu pour fonctionner avec l’ampli YAMAHA RXV1300 de 110W RMS. Voir Page Système V3.


Le nouvel ampli utilisé est le B.K de 305W RMS.


En simulation le rendement calculé à 1W est de 97.5dB et à 305W il est supérieur à 122dB. En théorie beaucoup de marge car le Pmax est de 500W RMS.

L’élongation est quant à elle quasiment à son maximum à puissance max des amplis soit 305W. On a même un peu de marge donc c’est parfait.

Attention tout de même en dessous de 35Hz car l’élongation monte en flèche. On peut rajouter un filtre coupe bas si problème dans certaines situations.

Concernant l’évent nous avons toujours le choix entre différentes configurations. Petit et court ou gros et long peuvent avoir les mêmes fréquences d’accord mais pas pour autant les mêmes caractéristiques physiques.

Il faut regarder la vitesse de l’air au passage dans l’évent. Plus celle-ci sera basse et meilleur sera l’amortissement du HP. Je ne peux que vous conseiller que de gros évents.


Dans notre cas présent nous avons 40m/s à 40Hz. Ça pourrait être mieux!

Les médiums :


Après avoir choisi un 46cm pour les basses, il faut que le médium descende relativement bas pour prendre le relais dans une plage convenable pour le couple . Le diamètre adéquat semble être 30cm.

Sachant que le tweeter ne descendra pas en dessous de 3Khz, un HP large bande semble préférable au besoin.


Le gagnant est le MONACOR SP-30 PATC

Les critères de choix sont les suivants:


     Le diamètre de 30cm et 47Hz de fréquence de résonance afin de descendre relativement bas et couper au plus tôt.

     Le rendement de 99dB identique au boomer.

     La large bande passante.

     La puissance élevée 200W RMS.

     Le prix qui ne sortait pas de mon budget.


Par le manque de connaissance dans les critères de choix d’un HP de médium, je dois reconnaitre que ma décision a été prise à la légère. J’ai choisi ce HP surtout du fait provienne du même constructeur que le grave et je me suis dit qu'il s'accorderait mieux !!!

Simulation des médiums:


La charge est de type close avec un volume de 15L. La fréquence de coupure est de 130Hz à -3dB et d’environs 200Hz à 0bD. Le QTC est de 0.790.

Au niveau du rendement la simulation donne 98dB pour 1W ce qui est proche du datasheet. A la puissance max de l’Ampli soit 220W on doit obtenir plus de 121dB.

Concernant l’élongation, jusqu’à 200Hz elle reste en dessous de la limite même à puissance maximale. On note qu’il est préférable de raccorder au-dessus de 200Hz

Les aigues :


Pour ce projet je ne souhaitais pas un tweeter comme on trouve souvent en Hifi sur les systèmes grand public. Il me fallait quelque chose pouvant se marier avec le reste.


J’ai beaucoup de plaisir à écouter les petites compressions sur pavillon comme celle de la Mach2. Mes recherches s’étalent sur les compressions et pavillons mais peu expérimenté dans ce domaine je me concentre sur une solution monobloc.


Le grand gagnant est BEYMA CP-25

Les critères de choix sont les suivants :


     La bande passante assez large 2.5-20KHz.

     La dispersion 100° x 60° qui est large pour un tweeter.

     Le rendement élevé et surtout supérieur au 99dB du boomer et du médium.

     La puissance élevée de 25W RMS.

     Une assez bonne réputation sur les Forums.

     Un prix très raisonnable.


Pour la petite histoire j’ai hésité avec le JBL 2404H mais compte tenu de la différence de prix exorbitante ma décision a été des plus simple à prendre. 

La Caisse :


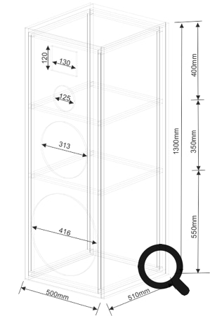
La première étape est de fixer le volume interne minimum requis en fonction des différentes charges. Soient 250L pour les basses et 15L pour les médiums. A cela faut rajouter les volumes de tous les autres éléments et prendre en compte l’épaisseur des parois.

La deuxième étape est de définir les dimensions physiques en fonction des éléments à implanter sur la façade et bien entendu du volume interne à garantir.


Les parois sont en contreplaqué marine de 20mm renforcé de tasseaux de 20x20mm ce qui nous donne dans le détail :

L’objectif est atteint, 15L de charge pour les médiums et 250L pour le HP des basses.



La réalisation :


L'idéal aurait été d'utiliser des panneaux agglomérés ou de MDF malheureusement sur place je ne pouvais rencontrer que du contreplaqué de 20mm ce qui n'est soit disant pas le "TOP" pour la réalisation d'enceinte.


J'ai d'abord crée une caisse en contreplaqué de 20mm pressée et colée. Le tout est renforcé par un treillis de tasseaux de 20x20mm en bois exotique très dur, collé et vissé tous les 50mm.


Un placage en chaîne doré est collé sur les faces extérieurs. Le tout coloré avec une lasure exotique couleur acajou.

Les découpes pour les HP et l'évent sont réalisées à l'aide d'un scie sauteuse.


Un filet de silicone est déposé sur le pourtour des HP avant leur fixation avec des vis type PARKER.


Pour le compartiment clos du médium je me suis longtemps posé la question si j'allais construire une boite en contreplaqué. Aillant peur des ondes stationnaires et des résonances dans une boite carré et ne trouvant pas de charge close de gande dimension je décide alors d'acheter une bassine arrondis assez rigide de 15 litres.


Le câblage des HP a été réaliser en fils électrique souple de 4mm2 pour le grave, de 2.5mm2 pour le médium et de 1.5mm2 pour le tweeter. des couleurs différente ont été utilisées pour toujours différencier le + du - du HP.

En façade un adhésif type vinyle satiné est collé pour couper avec le ton marron rougeâtre du bois exotique. Ce matériaux est bon marché facile à trouver et assez simple à coller.


La fameuse bassine est elle aussi collée au silicone et vissée avec des vis type PARKER.


Un petit trou est effectué au travers de celle-ci afin de laisser passer les fils du HP. Ce trou est bouché avec du silicone afin de ne pas laisser entrer ou sortir l'air.


Seule la parois arrière a été recouverte de laine synthètique de 20mm d'épaisseur.


Le panneau arrière totalement amovible ce qui facilite grandement l’accès. Peint en noir afin de trancher avec le ton acajou.

L'évent :


Aujourd'hui il existe de nombreux logiciel permettant de calculer les évents. Pour ma part j'utilise WINISD de linear Team.


Etant difficil de trouver un évent de grand diamètre je décide d'en fabrique un avec tube inox de 1.5mm d'épaisseur et soudé à l'argon sur une bride à collet. Quelques perçages pour la fixation, un bon polissage et c'est finit.

Accessoires :


Pour les bornier pas besoin de chercher bien loin.


Pour les pieds je suis contre les pointes. De bons silents bloc boulonnés dans le bas de la caisse c'est pour moi ce qui il y de mieux. 3 pieds limitent la transmission au sol et permette à l'enceinte de bien reposer sans être bancale.

Le cache :


Pour la protection des hauts parleur un tissu acoustique est agrafé sur un cadre en contreplaqué. Le tout est fixé avec des accessoire confectionnés. Des inserts en plastique sont encastrés au quatre coins. Des entretoise en inox assurent la liaison entre le cadre et l'enceinte.


Tout ceci afin de rendre le cadre amovible au besoin.

Résultat d'écoute :


Je vous invite à rejoindre les pages du SYSTEME V3 pour la version en filtrage passif et SYSTEME V4 pour la version en filtrage actif et tri-amplification.

 
 
 
 

© 2021 www.phd-audio.fr